20
$3,100 Rent
Listed 4 hours ago
785 Conlin Road
· 3+1
· 3
· 2
· 1500-2000
Listing History
Buy/Sell/Terminated/Expired listing history for 785 Conlin Road
Key Facts
Key facts for 785 Conlin Road
Property Type
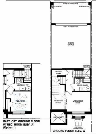
Townhome, 3-Storey
Parking
Built-In 1 garage, 2 parking
MLS #
E12459278
Size
1500-2000 sqft
Basement
Finished with Walk-Out
Listed on
2025-10-13
Lot size
-
Tax
-
Days on Market
1
Approximate Age
New
Maintenance Fee
- Parking
Description
Beautiful 3-story townhome, North Oshawa. The main floor features an open-concept design, a spacious great room with a walkout to the deck, and a modern kitchen. The upper floor includes 3 bedrooms, 2 full bathrooms, and a convenient laundry room. The ground floor offers a media room or fourth bedro...om renters' choice, with a walkout separate entrance. Oversized windows throughout the home ensure an abundance of natural light. Conveniently located near schools and colleges such as Durham College and Ontario Tech University, parks, a recreation center, shopping, and restaurants.
Similar Properties (No results)
Room Types
Bathroom
-
Dimensions - feet
0 sqft
Bedroom 2
-
Dimensions - feet
0 sqft
Bedroom 3
-
Dimensions - feet
0 sqft
Courtesy of: ROYAL LEPAGE SIGNATURE REALTY